在玻璃瓶罐行業,根據玻璃制品的成型過程不同,有吹-吹法、壓-吹法兩種制瓶工藝。尤其是在小口壓-吹工藝的成型過程,對玻璃料滴的重量控制都做嚴格要求,如果料重控制不當,容易造成制品成型缺陷。玻璃廠通常調節料重的做法是通過人工調節勻料筒的高度,料棒的高度來實現。這種方法調節精度差,料滴抽樣沒有經過系統數據分析,人為的手動調整往往達不到理想的效果。有的玻璃廠進口瑞士EMHERT公司生產的PPC料重控制系統,控制精度高,滿足壓-吹法輕量瓶的生產要求。他的控制原理是檢測成型過程中芯子的行程,完成料重控制。由于控制原理所限制,不能應用在吹吹法及壓機等制瓶工藝中,并且價格較高,高昂的價格并非所有玻璃廠能夠接受。我們的伺服料重控制系統不僅滿足多種制瓶機的生產工藝要求,同時還可用于壓機等設備的料重控制系統。本系統由智能秤、上位機、PLC、伺服驅動器、伺服電機及電機驅動的料重機械機構─勻料筒和料棒。智能秤及現場按鈕操作臺,放置在制瓶機成型側一旁,有利于取瓶稱重,同時秤上加裝防護,防塵、放油。PLC、伺服驅動器安裝在控制柜內,控制柜安裝在控制室內。秤與控制柜通過通訊線連接,操作臺與控制柜通過通訊線及電纜連接,完成信號的傳輸。人工將成型的瓶罐夾取放置在智能秤上,穩態重量數據通過智能秤自動將數據傳輸給控制器PLC和上位機。上位機用于顯示、保存采集數據及系統控制參數的輸入。PLC根據多組采集重量的均值與標準重量差值及機械傳動比,通過PID及邏輯運算控制伺服電機運行,從而帶動機械機構勻料筒、中料棒、后料棒的上下運行控制玻璃料滴的出料量。
1系統結構
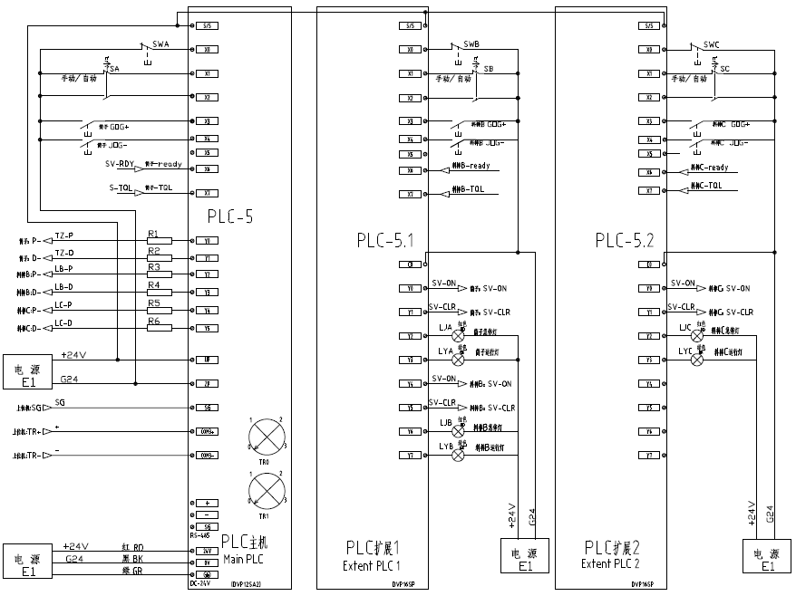
料重控制系統包括智能秤SC,用于人機交互控制的上位機C,用于運動控制的PLC,用于伺服運動控制的伺服驅動器及伺服電機和現場終端控制盒:筒子控制盒TZ,中料棒控制盒LB,后料棒控制盒LC。根據配置不同會選擇是否配置后料棒C及控制盒LC,終端控制盒主要用于現場控制操作。伺服驅動器包括:控制筒子運行的伺服驅動器SFTZ,控制中料棒B運行的伺服驅動器SFLB,控制后料棒C運行的伺服驅動器SFLC。筒子伺服驅動器SFTZ,通過電機線LD1和編碼器線LB1,控制筒子伺服電機MA,達到控制料重的目的。伺服驅動器SFLB1通過電機線LD2和編碼器線LB2,控制伺服電機MB,達到控制中料重量的目的。伺服驅動器SFLB2通過電機線LD3和編碼器線LB3,控制伺服電機MC,達到控制后料重量的目的。如下圖系統結構圖1

2、控制原理:
根據系統配置不同,本控制系統可以靈活運用于制瓶機吹-吹法,壓-吹法等不同生產工藝的料重控制系統中,應用范圍較廣。控制方式分為手動控制及自動控,控制步驟分為筒子控制料重及料棒控制料重。
手動控制方式:手動控制方式是通過點動按鈕“上升”或“下降”實現筒子或料棒的上下運行。點動位移可以設置,設置范圍0.01mm-1mm,靈活滿足了不同情況下的位移量。針對玻璃廠生產過程情況的需求,我們在手動方式下,還設計了長按點動按鈕,可以實現筒子或料棒的快速位移,位移距離和速度可以設置。此種情況應用于快速扎住熱玻璃料進行更換料碗或進行維修,此功能在玻璃廠非常實用。
自動控制方式:將玻璃瓶罐放置在智能秤上,穩態數據將被采集并發送給PLC。數據采集子程序將采集的重量數據經過LRC校驗正確后,用于控制器PLC的運算,同時將數據顯示在上位機界面,用戶通過界面窗口設定想要操作的模式以及需要達到的控制精度。生成控制方案傳遞給PLC控制伺服運動系統,控制器PLC根據采集樣品的不同做相應的邏輯運算,再根據不同的精度要求,控制伺服驅動器。伺服驅動器再分別控制筒子和料棒伺服電機的上升、下降,達到調節料重的目的。PLC控制原理接線圖如下:

3、操作步驟:
現場裝置調試,智能秤安裝在制瓶機成型側一旁,便于取瓶。智能秤的安裝位置要相對的水平,牢固。智能秤對水平度要求較高,首先調試智能秤的水平度,我們采用瑞士產的梅特勒-托利多Ⅱ級精度的天枰秤,精度為0.1G,設置秤的通訊參數。根據電腦界面設置的采樣次數進行取樣測量。如果界面設置為2滴料,則系統只需要控制勻料筒及一個料棒的運行;如果設置為3滴料,系統需要控制勻料筒,中料棒,后料棒的上下運行,達到控制料重的目的。根據上位機界面,進行系統操作。
手動控制方式:1、在筒子控制盒TZ上,將旋鈕SA打到手動控制,拔出急停旋鈕SW1,初始化完成。根據取樣值的“平均值”與設定的“標準值”確定筒子上升及下降。在控制盒上手動點動JOG+或JOG-,控制筒子按0.01mm-0.5mm的范圍上升或下降,控制料重。如果在遇到緊急情況需要扎料或檢修時,需要快速操作,可以長按JOG+或JOG-,筒子會按“長按速速”(備注:長按JOG+或JOG-按鈕運行的速度,設置范圍1-10mm/s)快速上下運行,“長按位移”則是長按JOG+或JOG-按鈕產生的位移,設置范圍1-100mm。靈活的操作方式滿足了客戶在不同情況下的需求。
自動控制方式:2、在筒子控制盒TZ上,將旋鈕SA打到自動控制。將“是否通訊”選擇為“YES”,實現了上位機與PLC的實時通訊功能。這樣每次采集的重量數據會顯示在上位機上,當采集次數達到設定“采集次數”,系統會自動計算采集平均值。平均值與標準值進行比較后,系統會自動控制伺服系統上升或下降一定的距離,達到控制料重的目的。當在下降過程中遇到石塊等硬物時,伺服電機轉矩會增大,當轉矩大于設定的安全轉矩值時,系統報警,伺服停止運行,達到保護系統的功能。
手動控制方式:1、當取樣料棒對應的料滴重量時,需要設置料棒控制界面,同樣需要設置采樣次數等參數。參數設置完畢,在中料棒控制盒LB上,將旋鈕SB打到手動控制,拔出急停按鈕SW2,初始化完成。根據取樣料重與設定值確定料棒上升或下降。在控制盒上手動點動JOG+或JOG-,控制料棒按0.1mm-0.5mm上升或下降,控制中料滴的料重。后料棒的控制方式與中料棒的控制方式相同。料棒界面中“長按速度”與“長按位移”的應用與筒子控制方式相同。
自動控制方式:2、料棒控制盒LB用于每段中料料重的控制,在料棒控制盒上,將旋鈕SB打到自動控制,撥出筒子急停按鈕SW1,初始化完成后,首先根據電腦輸入的采集次數,采集每段的中料,將數據傳輸至控制器PLC,PLC根據料重平均值與標準值的差值判斷料棒運行的方向,如果中料取樣值大于設定值則中料棒按0.1g/mm下降,小于設定值中料棒按0.1g/mm上升,在調整過程中再輔助增益調整,差值在允許范圍內則不做調整。
為了便于用戶更加形象直觀的看到采集數據,采集重量的平均值被自動繪制成實時的歷史曲線圖。每一次被采集的重量值,還被保存為EXCEL文檔,便于用戶查詢。
4結束語
料重控制與輕量化,輕量化的玻璃瓶罐生產工藝成為節能環保,綠色生產的有效解決方案。輕量瓶的主要特點是壁薄,質量輕,瓶身玻璃分布均勻,壁厚均勻。輕量瓶具有以下優點:
1、原材料用料少,既同樣的玻璃料可以多生產 15%-25%以上的產品。
2、單位產品的燃料,電力等消耗大為降低。
3、因為瓶壁薄,冷卻速度快,因此生產機速可以有效提高。
4、因重量減輕,以頓位計價的運輸成本大為降低。
高端輕量瓶成為玻璃瓶罐行業的發展趨勢,輕量化的技術實現,離不開玻璃瓶罐料滴重量維持穩定性的前提保證。料重控制系統在玻璃瓶罐行業應用廣泛,本系統的技術水平達到國內領先水平,填補國內空白。本控制系統配置靈活、控制參數直觀易懂、操作簡便。系統精準的控制方式,有效避免了玻璃制品成型過程中由于料重問題產生的成型缺陷,提高了玻璃廠的經濟效益。與國內玻璃行業使用的同類產品比較性價比高,應用范圍廣,使用靈活,更有效的適應國內市場。本產品在2017年6月投入市場,現已應用在江門粵玻、沂南三匯、廣西北流建鏵等多家玻璃廠。由投產數據分析,玻璃成品的料重控制精度在正負0.5克,基本滿足了高端玻璃制品的生產需求。如今,本產品公司每月生產10臺左右,為玻璃企業帶來經濟效益的同時,也為企業生產增產、增效貢獻一份力量。